車を飾れるマンション「LUMIEC CHITOSE FUNABASHI」2024年夏、千歳船橋にオープン!

コロンビア・ワークス株式会社(所在地:渋谷区渋谷、代表取締役:中内準)は、この度、車を飾れるマンション「LUMIEC CHITOSEFUNABASHI」をオープンいたします。
※2024年7月1日から入居可能。
※車を飾れるギャラリー付きの部屋は、8月末完成予定。
また、ギャラリー付きの部屋に関しては、7月1日(月)より先行申込受付、9月1日(日)より入居可能となります。公式サイトより申込をいただいた方は、仲介手数料無料、1ヵ月フリーレントにて入居が可能です。

<LUMIEC CHITOSEFUNABASHI公式サイト>
https://lumiec.jp/chitosefunabashi
<本リリースに関する問い合わせ先>
コロンビア・コミュニティ株式会社 TEL: 03-6433-5744
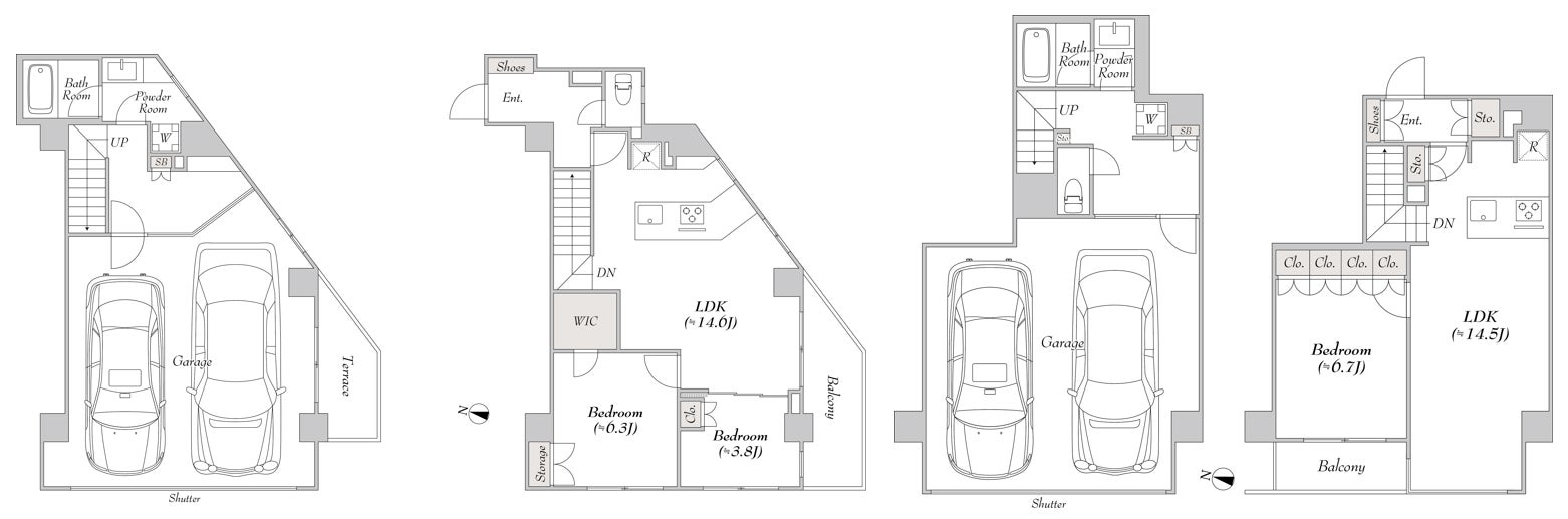
■車を飾れるギャラリースペース4つのポイント
1.どんな車でも飾れる広さ
4部屋のうち2部屋は、2台の車を収容可能。他2部屋も、バイクと車を1台ずつ収容可能な、広々としたギャラリースペース付き。愛車を眺めることはもちろん、メンテナンスやカスタマイズも楽しむことが可能です。

2.愛車の魅力を高める内装
車が反射する光沢感のある床や、ダークトーンの壁、愛車のボディカラーを照らしだすダウンライトなど、車好きの担当者が考えた、部屋ごとに違うこだわりの内装により、外出時以外でも愛車の魅力を存分に引き出します。

3.お酒を飲みながら愛車を眺められる、観覧スペース
一部の部屋には、お酒を飲みながら愛車を眺めて楽しめる、ガラス張りの観覧スペース付きです。ギャラリースペースと繋がっているため、部屋からダイレクトに愛車にアクセスすることも可能です。また、浴槽に浸かりながら車を眺めることのできるバスルームがある部屋などもあり、生活の様々なシーンで、愛車と過ごすことが可能です。

■LUMIEC CHITOSEFUNABASHIの他特徴
・一人一人のライフスタイルによって選べるルームプラン
ギャラリースペース付きの4部屋は、1LDK+ショールーム、または2LDK+ショールームの、2タイプのルームプランからお選びいただけます。
また、ギャラリースペースのない19部屋も、単身者やカップル、書斎や趣味の部屋が欲しい方など、一人一人のライフスタイルにあったスペースをご用意しております。


■都心から少し離れた隠れ家/千歳船橋駅徒歩8分
北口、南口の双方に商店街があり、スーパーやドラッグストア、コンビニが駅前に揃う、千歳船橋駅。小田急線で、下北沢駅まで電車で9分、表参道駅まで17分、新宿駅まで21分と、乗り換えなしで都心部に出れる好立地なエリアながら、砧公園、馬事公苑などの緑豊かな憩いの場所も。都心の喧騒から離れた隠れ家のような住環境です。
また、車のアクセスもよく、至近の環八通り、東名高速道路のインターチェンジまで10分と、ふとしたドライブに出掛けるのに絶好の立地です。

■LUMIEC CHITOSEFUNABASHI 物件概要
<物件概要>
名称:LUMIEC CHITOSEFUNABASHI
所在地:東京都世田谷区船橋二丁目5番5号
交通:小田急小田原線千歳船橋駅徒歩8分
構造・規模:鉄筋コンクリート造地上5階建て
総戸数:23戸
間取り:1LDK,1SLDK,2LDK,2SLDK
住戸専有面積:32.20㎡~113.10㎡
宅配ボックス:8箱
備考:ペット可
※掲載している写真・パース等はイメージです。実際のものと異なる場合が御座います。
<LUMIEC CHITOSEFUNABASHI公式サイト>
https://lumiec.jp/chitosefunabashi
■担当者のコメント
環八通りの近く、用賀インターまで10分の位置する立地を活かし、「車好きが車と生活ができるガレージハウス開発」の実現を考えました。私自身、バイクや車等の乗り物が大好きで、大切な愛車とずっと一緒に生活したいという想いを持っており、車好きの方たちのライフスタイルに応えたい一心で本件に取組みました。
自動シャッター付きのギャラリースペース内は黒と白の2色でシックにまとめ、床は光沢の黒色に施工することで、高級感を演出しております。また、ギャラリースペースは2タイプのプランをご用意しました。「全面ガラス張り仕様にして、ソファーで寛ぎながら眺められるお部屋」と、「ユニットバスに窓を設けてバスタブでリラックスし、癒されながら愛車を眺められるお部屋」です。
カーマニアがより愛車を大事にできる生活をこの「LUMEIC CHITOSEFUNABASHI」でお過ごしください。
本物件開発担当:藤原 誠
■先行予約について
ギャラリースペース付きの部屋は2024年9月1日から入居開始予定ですが、先駆けて先行申込を募集しております。
サイトから予約をされた方は、2024年9月末までフリーレントにて居住可能ですので、是非お気軽にお問合せください。
<お問い合わせ先>
コロンビア・コミュニティ株式会社
TEL :03-6433-5744
■会社概要
コロンビア・ワークス株式会社は、パーソナルトレーニング等のサービスを入居者に提供するトータルビューティーマンション「Blancé Beauté KOMAZAWADAIGAKU(ブランセボーテ駒澤大学)」、毎日朝食が付く、早起きしたくなるマンション「LUMIEC MEGURO」などのサービス付き賃貸マンションをはじめとして、オフィス、ホテル、医療施設など幅広い開発を行う不動産デベロッパーです。
会社名:コロンビア・ワークス株式会社
事業内容:不動産開発、不動産コンサルティング、不動産再生、ホテル等の事業
資本金:1,537,067,200円(2024年6月20日時点)
代表者:中内 準
設立:2013年5月14日
ウェブサイト:https://columbiaworks.jp/
<本リリースに関する お問い合わせ先>
コロンビア・コミュニティ株式会社
TEL: 03-6433-5744
(公式・広告)⇩⇩

